| 賃料 | 33万円 | 管理費等 | なし |
|---|---|---|---|
| 敷金 / 保証金 | なし / 3ヶ月 | 礼金 | 1ヶ月 |
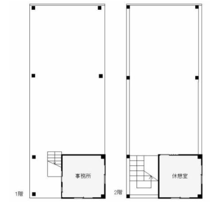
| 使用部分面積 | 219.62m² | 築年月 | 1994年1月(築31年1ヶ月) |
| 坪数 | 66.43坪 | 坪単価 | 0.4968万円 |
| 種目 | 貸工場 | 階建 / 階 | 2階建 |
| 所在地 | |||
| 物件種目 | 貸工場 | 使用部分面積 | 219.62m² |
|---|---|---|---|
| 坪数 | 66.43坪 | 土地面積 | 219.62m²(公簿) |
| 階建 / 階 | 2階建 | 建物構造・工法 | 鉄骨造 |
| 用途地域 | 無指定 | ||
| 備考 |
建ぺい率:60%
容積率:200% 都市計画:調整区域 ・火災保険加入要(借家人賠償付) ・建物登記無 ・専有面積は確認通知書の面積です。 ・トイレ使用の場合 別途共益費2,000円要 清掃及び備品の管理は借主負担 ・焼却炉有(借主の責任と負担にて使用可) ・市街化調整区域のため用途変更が必要です。 ・平成6年1月築となっておりますが、築月は不詳です。 |
||
↓ こちらの物件の詳細につきましては以下よりお問合せ下さい ↓
ER令和7年1月6日









