豊川市の売工場です。国道1号蔵位の物件で準工業地域に位置しています。
岡崎市へのアクセスもよい物件です。
- Screenshot
- Screenshot
- Screenshot
- Screenshot
価格:15,900万円
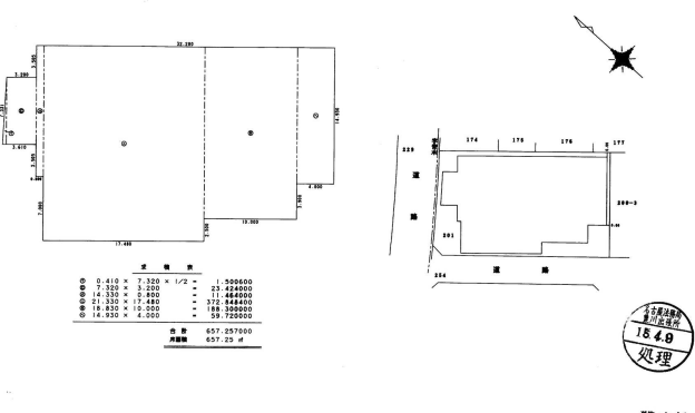
土地面積: 1,322.21m²(399.96坪)
鉄骨造2階建:1,377.66m²
築年月:1991年7月
市街化区域:準工業
取引態様:仲介
土地面積: 1,322.21m²(399.96坪)
鉄骨造2階建:1,377.66m²
築年月:1991年7月
市街化区域:準工業
取引態様:仲介
R200138682663E令和 8年 4月 8日









